Description
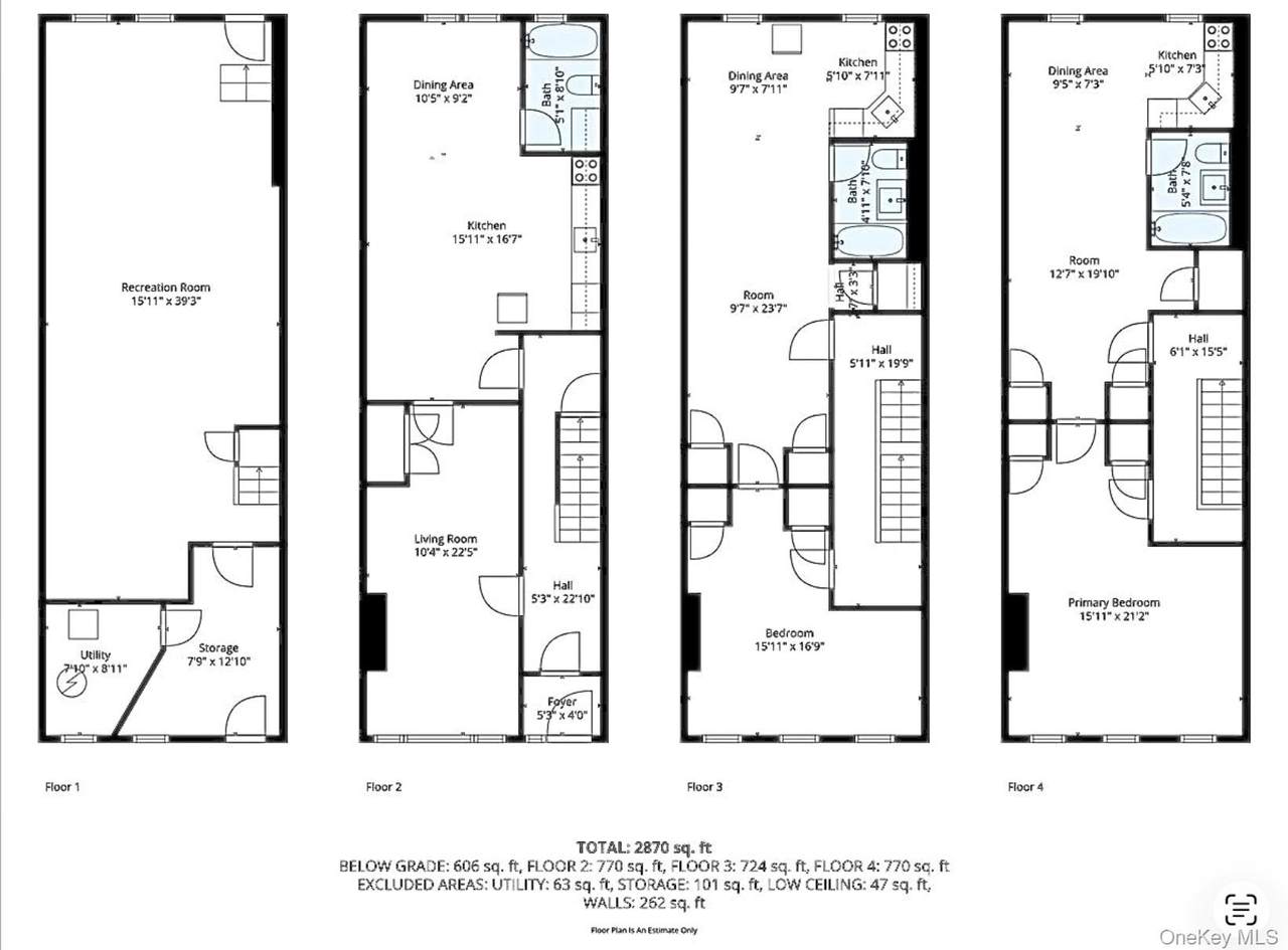
FOR SALE :VACANT, TURNKEY 3-FAMILY TOWNHOUSE IN PRIME GREENPOINT Welcome to 37 Jewel Street, a classic pre-war Brooklyn townhouse offering the perfect blend of historic charm, modern condition, and future potential. Built in 1901, this vacant, move-in-ready three-family home sits on a 16.75’ x 100’ lot in one of Greenpoint’s most desirable residential blocks. With approximately 2,600 sq. ft. of interior living space, this well-maintained property presents a rare opportunity for investors, end users, or buyers looking to create a custom single-family residence. Delivered completely vacant, the home is ideal for immediate occupancy, rental income, or thoughtful expansion. Property Highlights • Approx. 2,600 sq. ft. of interior space • Lot: 16.75’ x 100’ | Building: 16.7’ x 50’ • Zoning: R6B | FAR 2.0 • VACANT — no tenants in place • Turnkey condition throughout • Three free-market apartments Layout • First Floor: Open, flexible layout with multiple bedroom possibilities perfect for owner occupancy or strong rental performance. • Second Floor: Bright apartment featuring an eat-in kitchen, one full bath, and adaptable room configurations for additional bedrooms or a home office. • Third Floor: Similar layout with an eat-in kitchen and one bath; easily configured as a 1- or 2-bedroom unit. Major Bonus : Full Grade Basement with Duplex Potential A full ground-level basement with front street access and rear exit to the backyard makes this space ideal for a duplex conversion with the first floor. With excellent ceiling height, the basement offers tremendous potential as additional living space, recreation area, or rental upgrade. Outdoor Space Enjoy an expansive 834 sq. ft. private backyard, perfect for entertaining, gardening, or future landscaping and design projects. Investment & Location Situated in one of Brooklyn’s strongest rental markets, 37 Jewel Street offers excellent income potential and long-term appreciation. Transportation is convenient with the G train at Nassau Avenue just three blocks away, plus easy access to the L train, B24 bus, and the BQE. Greenpoint’s best parks — McGolrick and McCarren —are minutes away, along with beloved neighborhood favorites including Oxomoco, Five Leaves, Le Fanfare, and Variety Coffee. 37 Jewel Street is a rare opportunity to own a vacant, turnkey multi-family townhouse with both immediate value and significant upside. Whether you’re seeking an income property or envisioning a custom single-family home, this classic Greenpoint residence delivers on every level.
-
3BEDS
-
0.04ACRES
-
3BATHS
-
01/2 BATHS
School Ratings & Info
Description
FOR SALE :VACANT, TURNKEY 3-FAMILY TOWNHOUSE IN PRIME GREENPOINT Welcome to 37 Jewel Street, a classic pre-war Brooklyn townhouse offering the perfect blend of historic charm, modern condition, and future potential. Built in 1901, this vacant, move-in-ready three-family home sits on a 16.75’ x 100’ lot in one of Greenpoint’s most desirable residential blocks. With approximately 2,600 sq. ft. of interior living space, this well-maintained property presents a rare opportunity for investors, end users, or buyers looking to create a custom single-family residence. Delivered completely vacant, the home is ideal for immediate occupancy, rental income, or thoughtful expansion. Property Highlights • Approx. 2,600 sq. ft. of interior space • Lot: 16.75’ x 100’ | Building: 16.7’ x 50’ • Zoning: R6B | FAR 2.0 • VACANT — no tenants in place • Turnkey condition throughout • Three free-market apartments Layout • First Floor: Open, flexible layout with multiple bedroom possibilities perfect for owner occupancy or strong rental performance. • Second Floor: Bright apartment featuring an eat-in kitchen, one full bath, and adaptable room configurations for additional bedrooms or a home office. • Third Floor: Similar layout with an eat-in kitchen and one bath; easily configured as a 1- or 2-bedroom unit. Major Bonus : Full Grade Basement with Duplex Potential A full ground-level basement with front street access and rear exit to the backyard makes this space ideal for a duplex conversion with the first floor. With excellent ceiling height, the basement offers tremendous potential as additional living space, recreation area, or rental upgrade. Outdoor Space Enjoy an expansive 834 sq. ft. private backyard, perfect for entertaining, gardening, or future landscaping and design projects. Investment & Location Situated in one of Brooklyn’s strongest rental markets, 37 Jewel Street offers excellent income potential and long-term appreciation. Transportation is convenient with the G train at Nassau Avenue just three blocks away, plus easy access to the L train, B24 bus, and the BQE. Greenpoint’s best parks — McGolrick and McCarren —are minutes away, along with beloved neighborhood favorites including Oxomoco, Five Leaves, Le Fanfare, and Variety Coffee. 37 Jewel Street is a rare opportunity to own a vacant, turnkey multi-family townhouse with both immediate value and significant upside. Whether you’re seeking an income property or envisioning a custom single-family home, this classic Greenpoint residence delivers on every level.
© 2026 OneKey MLS. All rights reserved. IDX information is provided exclusively for consumers' personal, non-commercial use and may not be used for any purpose other than to identify prospective properties consumers may be interested in purchasing. Information is deemed reliable but is not guaranteed accurate by the MLS or Sheil Estate | Coldwell Banker Realty. Data last updated: 2026-03-11T08:17:28.34.
